БФ 59

Чертеж изделия:
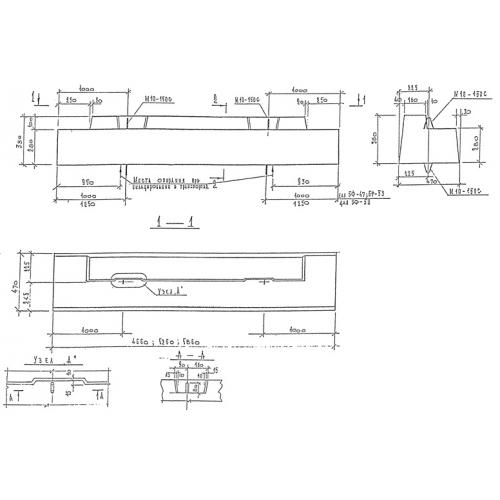
Характеристики изделия:
ПараметрЗначение
длина5960 мм
ширина470 мм
высота380 мм
масса2100 кг
нормативный документАльбом РС 1251-93

БФ 59 Балки фундаментные Альбом РС 1251-93.