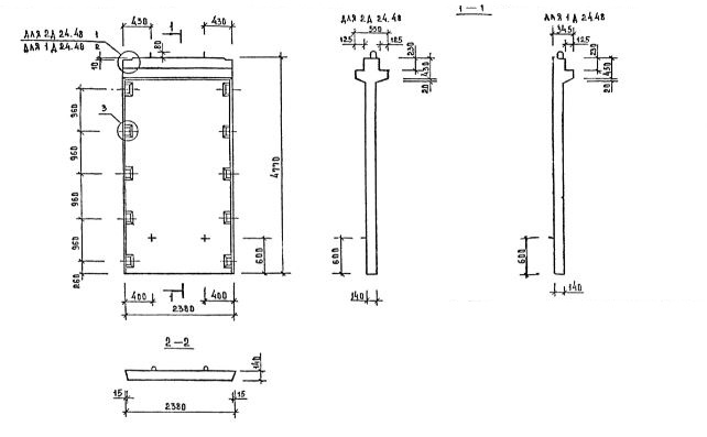
1Д 24.48 диафрагмы жесткости

Чертеж изделия:
Характеристики изделия:
ПараметрЗначение
длина2380 мм
ширина345 мм
высота4770 мм
масса4380 кг
нормативный документСерия 1.020-1/87

1Д 24.48   Диафрагмы жесткости с одной полкой Серия 1.020-1/87.