ПШЛ 50-30

Чертеж изделия:
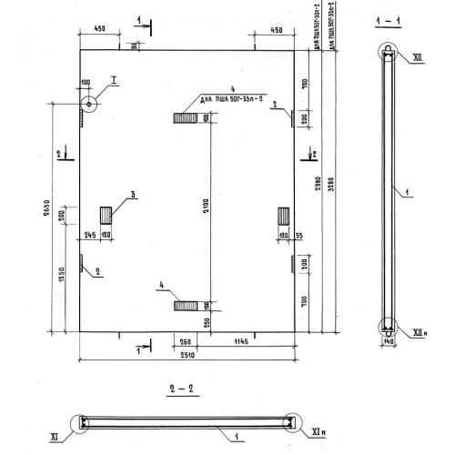
Характеристики изделия:
ПараметрЗначение
длина2510 мм
ширина140 мм
высота3280 мм
вес2620 мм
серия1.089.1-2

ПШЛ 50-30 Панель шахты для пассажирского лифта по серии 1.089.1-2.