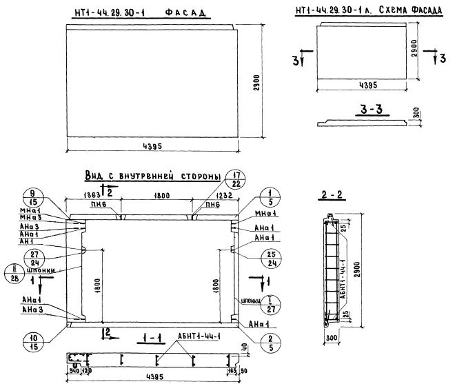
НТ1-44.29.30-1л

Чертеж изделия:
Характеристики изделия:
ПараметрЗначение
Длина4395 мм
Ширина300 мм
Высота2900 мм
Масса5100 кг
Нормативный документСерия 1.132-1

НТ1-44.29.30-1л   Наружная стеновая панель торцевая по Серии 1.132-1.