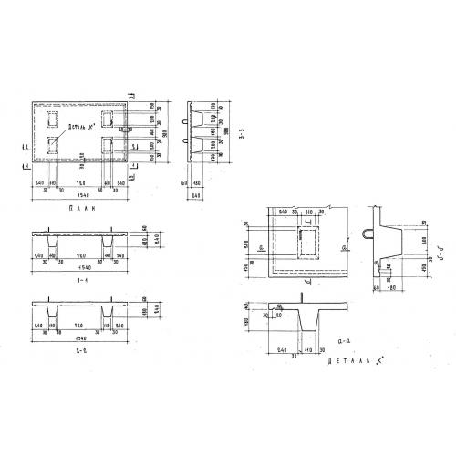
КВБ 15.10

Чертеж изделия:
Характеристики изделия:
ПараметрЗначение
длина1540 мм
ширина980 мм
высота240 мм
вес282 кг
серия1.134-3

КВБ 15.10 Крышки вентиляционного блока по серии 1.134-3.