ВБН 12.18.6
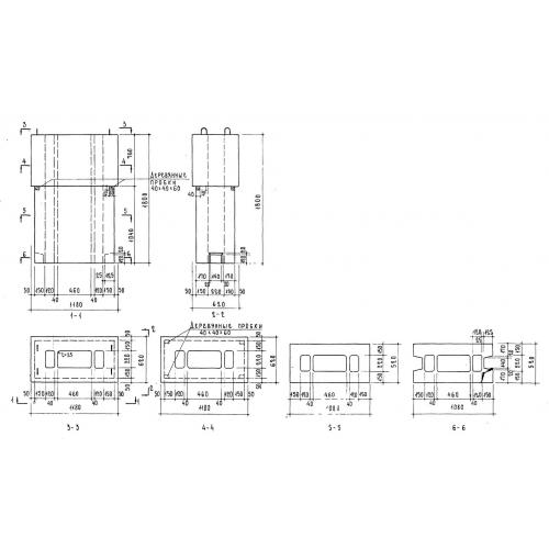
Характеристики изделия:
| Параметр | Значение |
|---|---|
| длина | 1180 мм |
| ширина | 620 мм |
| высота | 1800 мм |
| вес | 1040 кг |
| серия | 1.134-3 |
Цена:
Рассчитать стоимостьВБН 12.18.6 Наружные вентиляционные блоки по серии 1.134-3.
| Параметр | Значение |
|---|---|
| длина | 1180 мм |
| ширина | 620 мм |
| высота | 1800 мм |
| вес | 1040 кг |
| серия | 1.134-3 |
ВБН 12.18.6 Наружные вентиляционные блоки по серии 1.134-3.
