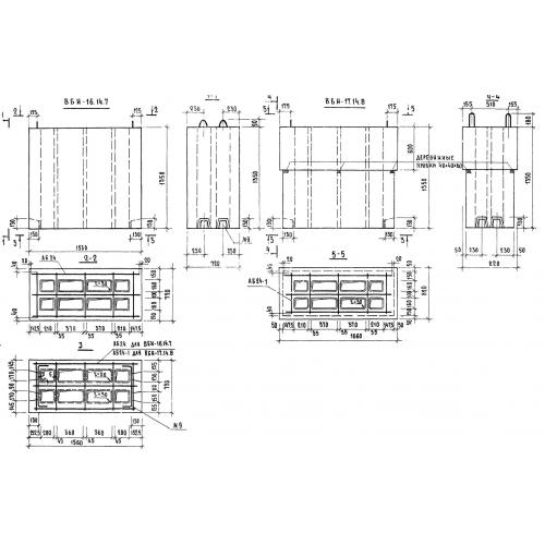
ВБН 17.14.8

Чертеж изделия:
Характеристики изделия:
ПараметрЗначение
длина1660 мм
ширина820 мм
высота1350 мм
вес1650 кг
серия1.134-3

ВБН 17.14.8 Наружные вентиляционные блоки по серии 1.134-3.