Б 15

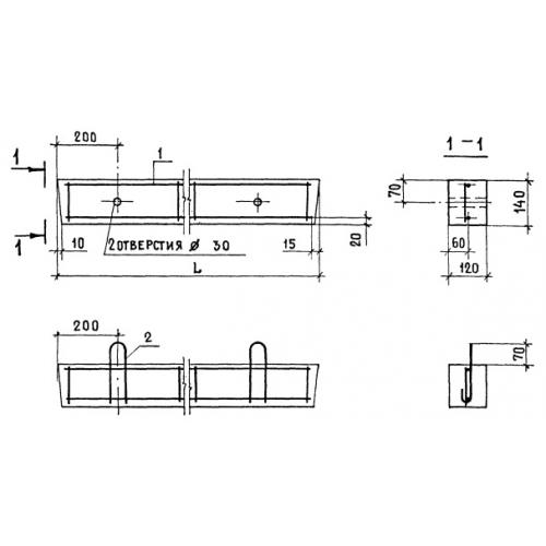
Чертеж изделия:
Характеристики изделия:
ПараметрЗначение
длина1550 мм
ширина120 мм
высота140 мм
вес62 кг
серия1.139-1

Б 15 Перемычки брусковые по серии 1.139-1.