ПУ-6.4.3.5
Характеристики изделия:
| Параметр | Значение |
|---|---|
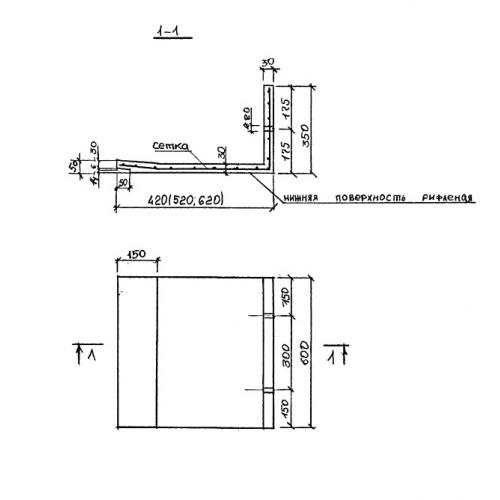
| длина | 600 мм |
| ширина | 420 мм |
| высота | 350 мм |
| масса | 35 кг |
| нормативный документ | Серия 1.149-КР-1 |
Цена:
Рассчитать стоимостьПУ-6.4.3.5 Железобетонные плиты перекрытия Серия 1.149-КР-1.
| Параметр | Значение |
|---|---|
| длина | 600 мм |
| ширина | 420 мм |
| высота | 350 мм |
| масса | 35 кг |
| нормативный документ | Серия 1.149-КР-1 |
ПУ-6.4.3.5 Железобетонные плиты перекрытия Серия 1.149-КР-1.
