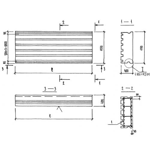
ПВ 54.12.40

Чертеж изделия:
Характеристики изделия:
ПараметрЗначение
длина5370 мм
ширина1190 мм
высота400 мм
вес1810 кг
серия1.165.1-10

ПВ 54.12.40 Вентилируемые панели покрытия по серии 1.165.1-10.