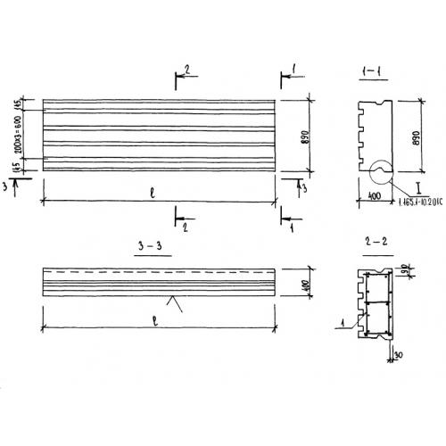
ПВ 57.9.40

Чертеж изделия:
Характеристики изделия:
ПараметрЗначение
длина5670 мм
ширина890 мм
высота400 мм
вес1420 кг
серия1.165.1-10

ПВ 57.9.40 Вентилируемые панели покрытия по серии 1.165.1-10.