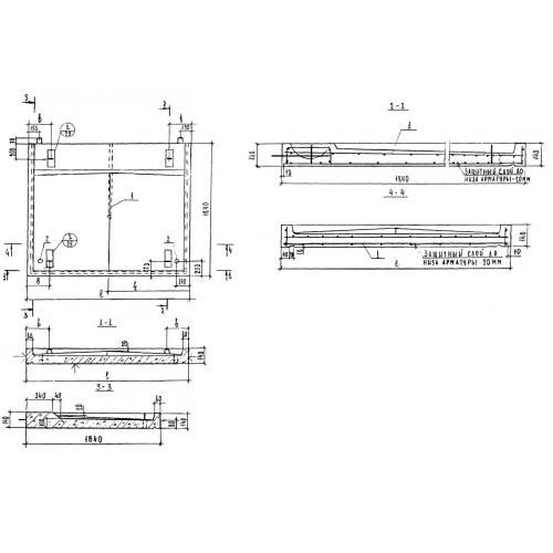
КВ 18.16

Чертеж изделия:
Характеристики изделия:
ПараметрЗначение
длина1840 мм
ширина1550 мм
высота140 мм
масса800 кг
нормативный документСерия 1.238-1

КВ 18.16  Козырьки входов Серия 1.238-1.