Б 40 ригели

Чертеж изделия:
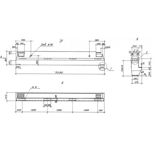
Характеристики изделия:
ПараметрЗначение
длина5280 мм
ширина495 мм
высота800 мм
масса3700 кг
нормативный документСерия 1.420-35.95

Б 40  Ригели с полками для опирания плит  (однополочные ригели) Серия 1.420-35.95.