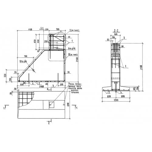
3Ф 21.12

Чертеж изделия:
Характеристики изделия:
ПараметрЗначение
длина2100 мм
ширина1200 мм
высота2100 мм
масса3520 кг
нормативный документСерия 1.812.1-3

3Ф 21.12 Фундаменты столбчатые Серия 1.812.1-3.