С-21
Характеристики изделия:
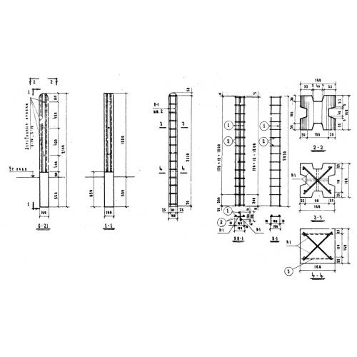
| Параметр | Значение |
|---|---|
| длина | 2100 мм |
| ширина | 160 мм |
| высота | 160 мм |
| вес | 115 кг |
| серия | 2.800-2 |
Цена:
Рассчитать стоимостьС-21 Стойки железобетонные с крестообразным поперечным сечением по серии 2.800-2.
| Параметр | Значение |
|---|---|
| длина | 2100 мм |
| ширина | 160 мм |
| высота | 160 мм |
| вес | 115 кг |
| серия | 2.800-2 |
С-21 Стойки железобетонные с крестообразным поперечным сечением по серии 2.800-2.
