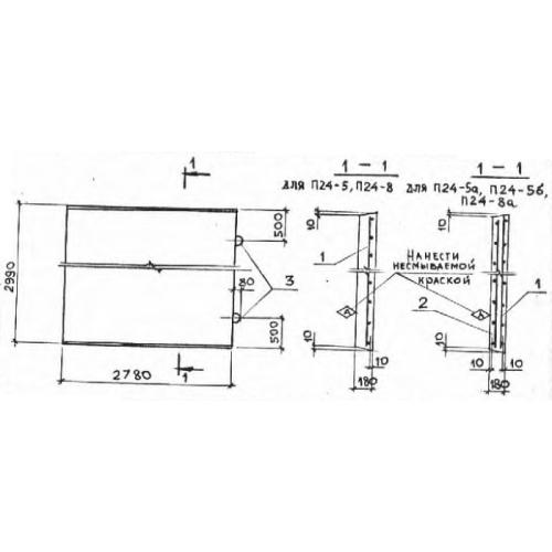
П 24

Чертеж изделия:
Характеристики изделия:
ПараметрЗначение
длина2990 мм
ширина2780 мм
высота180 мм
вес3740 кг
серия3.006-2

П 24 Плиты перекрытия лотков по серии 3.006-2.