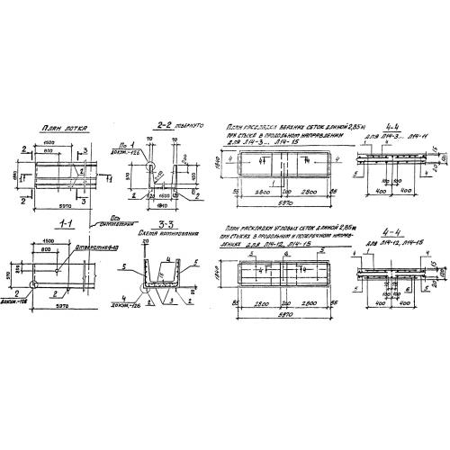
Л 14

Чертеж изделия:
Характеристики изделия:
ПараметрЗначение
длина5970 мм
ширина1840 мм
высота570 мм
масса4650 кг
нормативный документСерия 3.006.1-2/82

Л 14  Лотки теплотрасс Серия 3.006.1-2/82.