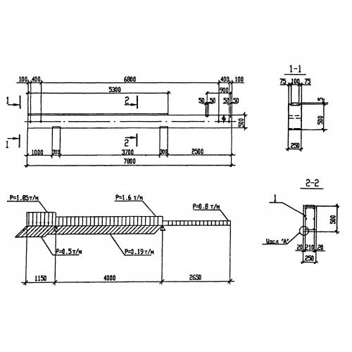
Т 6

Чертеж изделия:
Характеристики изделия:
ПараметрЗначение
длина7800 мм
ширина250 мм
высота500 мм
вес2400 кг
серия3.016.1-11

Т 6 Траверсы по серии 3.016.1-11.