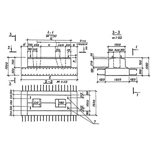
Ф-550

Чертеж изделия:
Характеристики изделия:
ПараметрЗначение
длина5500 мм
ширина2560 мм
высота1200 мм
вес16300 кг
серия3.503.1-57

Ф-550 Блоки фундамента по серии 3.503.1-57.