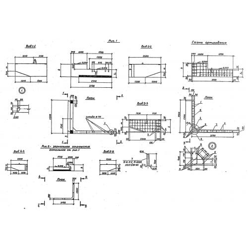
БШ 32-4
Характеристики изделия:
| Параметр | Значение |
|---|---|
| длина | 3190 мм |
| ширина | 2500 мм |
| высота | 770 мм |
| вес | 1680 кг |
| серия | 3.503.1-79 |
Цена:
Рассчитать стоимостьБШ 32-4 Блоки шкафных стенок по серии 3.503.1-79.
| Параметр | Значение |
|---|---|
| длина | 3190 мм |
| ширина | 2500 мм |
| высота | 770 мм |
| вес | 1680 кг |
| серия | 3.503.1-79 |
БШ 32-4 Блоки шкафных стенок по серии 3.503.1-79.
