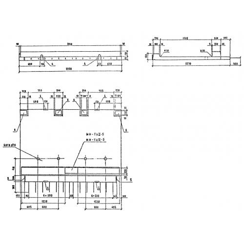
Т 150.15 блок тротуарный

Чертеж изделия:
Характеристики изделия:
ПараметрЗначение
длина2990 мм
ширина2570 мм
высота230 мм
вес1700 кг
серия3.503.1-81

Т 150.15 Блоки тротуарные по серии 3.503.1-81.