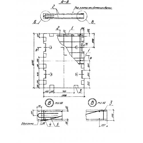
6ПО 20

Чертеж изделия:
Характеристики изделия:
ПараметрЗначение
длина1500 мм
ширина2000 мм
высота200 мм
вес1500 кг
серия3.505.1-16

6ПО 20 Плиты омоноличенные по серии 3.505.1-16.