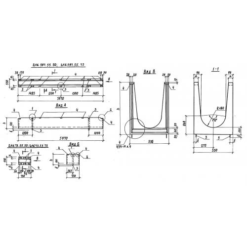
ЛК 597.55.75

Чертеж изделия:
Характеристики изделия:
ПараметрЗначение
длина5970 мм
ширина550 мм
высота750 мм
вес2650 кг
серия3.818.9-2

ЛК 597.55.75 Лотки для каналов навозоудаления по серии 3.818.9-2.