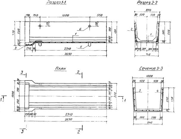
ЛПР 6-6

Чертеж изделия:
Характеристики изделия:
ПараметрЗначение
Длина2650 мм
Ширина1000 мм
Высота770 мм
Масса1100 кг
Нормативный документСерия 3.820-21

Лотки прямоугольные раструбные - блоки лотков быстротоков по Серии 3.820-21.