АО 8

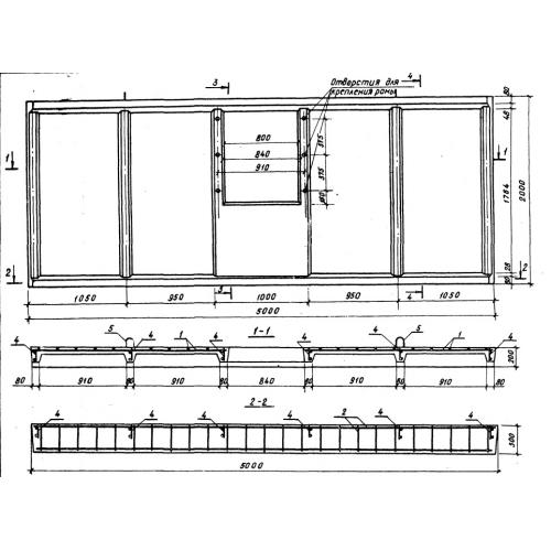
Чертеж изделия:
Характеристики изделия:
ПараметрЗначение
длина5000 мм
ширина300 мм
высота2000 мм
масса2210 кг
нормативный документСерия 3.820-6

АО 8 Оголовки портальные для открытых сооружений по Серии 3.820-6.