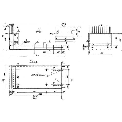
СБ-30
Характеристики изделия:
| Параметр | Значение |
|---|---|
| длина | 1500 мм |
| ширина | 1500 мм |
| высота | 3530 мм |
| масса | 4430 кг |
| нормативный документ | Серия 3.820.1-29 |
Цена:
Рассчитать стоимостьСБ-30 Стеновые блоки по Серии 3.820.1-29.
| Параметр | Значение |
|---|---|
| длина | 1500 мм |
| ширина | 1500 мм |
| высота | 3530 мм |
| масса | 4430 кг |
| нормативный документ | Серия 3.820.1-29 |
СБ-30 Стеновые блоки по Серии 3.820.1-29.
