НГ 30
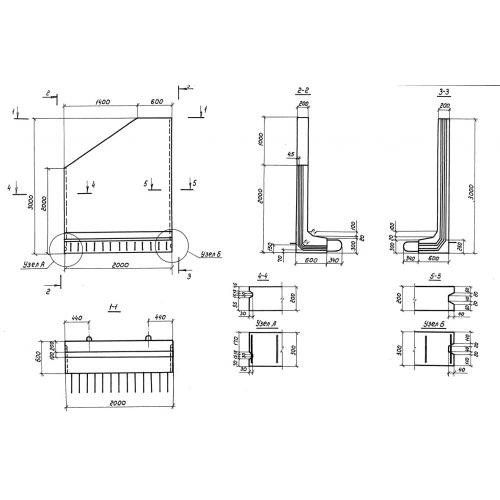
Характеристики изделия:
| Параметр | Значение |
|---|---|
| длина | 2000 мм |
| ширина | 940 мм |
| высота | 3000 мм |
| вес | 3300 кг |
| серия | 3.820.1-73 |
Цена:
Рассчитать стоимостьНГ 30 Г-образная конструкция с ныряющей вертикальной стенкой по серии 3.820.1-73.
| Параметр | Значение |
|---|---|
| длина | 2000 мм |
| ширина | 940 мм |
| высота | 3000 мм |
| вес | 3300 кг |
| серия | 3.820.1-73 |
НГ 30 Г-образная конструкция с ныряющей вертикальной стенкой по серии 3.820.1-73.
