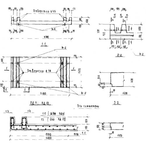
ПД 10 плиты днища

Чертеж изделия:
Характеристики изделия:
ПараметрЗначение
длина3180 мм
ширина1470 мм
высота300 мм
масса1500 кг
нормативный документСерия ИС 01-04

ПД 10 Плиты днища сплошные, состоящие из сборных элементов, по Серии ИС 01-04.