А 31

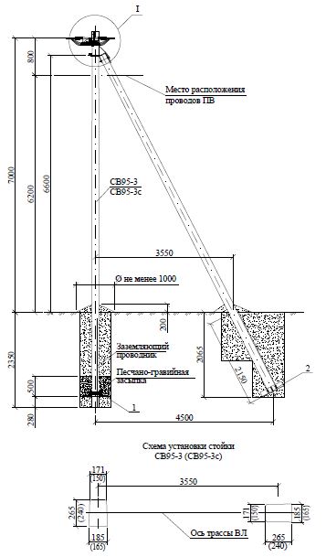
Чертеж изделия:
Характеристики изделия:
ПараметрЗначение
длина9350 мм
ширина185 мм
высота265 мм
масса900 кг
нормативный документШифр 26.0085

А 31  Анкерные (концевые) одноцепные опоры Шифр 26.0085.