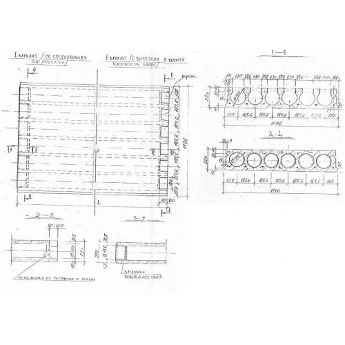
ПЭ 24.12
Характеристики изделия:
| Параметр | Значение |
|---|---|
| длина | 2380 мм |
| ширина | 1196 мм |
| высота | 220 мм |
| вес | 820 кг |
| Шифр | СК 1223 |
Цена:
Рассчитать стоимостьПЭ 24.12 Плиты многопустотные безопалубочного формования по Шифру СК 1223.
| Параметр | Значение |
|---|---|
| длина | 2380 мм |
| ширина | 1196 мм |
| высота | 220 мм |
| вес | 820 кг |
| Шифр | СК 1223 |
ПЭ 24.12 Плиты многопустотные безопалубочного формования по Шифру СК 1223.
