ПО-15

Чертеж изделия:
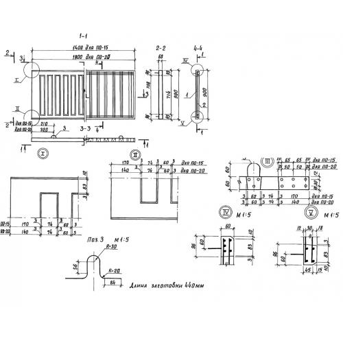
Характеристики изделия:
ПараметрЗначение
длина1400 мм
ширина60 мм
высота900 мм
вес122 кг
серияТП 501-7-014.91

ПО-15 Панели ограждения по проекту ТП 501-7-014.91.