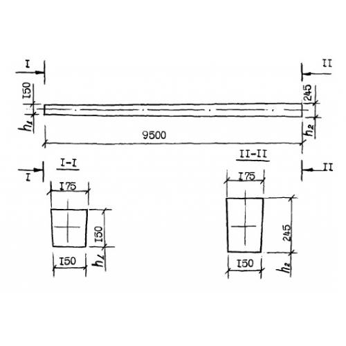
СВ 95

Чертеж изделия:
Характеристики изделия:
ПараметрЗначение
длина9500 мм
ширина175 мм
высота245 мм
вес750 кг
серияТУ 34 12.11410-89

СВ 95 Стойки вибрированные по ТУ 34 12.11410-89.