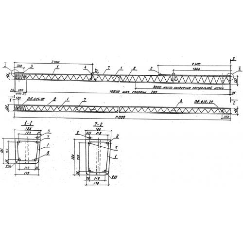
СВ 110

Чертеж изделия:
Характеристики изделия:
ПараметрЗначение
длина11000 мм
ширина185 мм
высота280 мм
вес1125 кг
серияТУ 5863-007-00113557-94

СВ 110 Стойки вибрированные по ТУ 5863-007-00113557-94.